Работа с объектами на сдачу имеет свои особенности, обычно она предполагает небольшой бюджет, ограниченные условия и практические решения, в рамках которых необходимо создать интерьер, который будет выделяться среди сотен рекламных объявлений. В этой квартире площадью 34 кв. Метрам Надежды Комаровой пришлось создать «чистое» и универсальное пространство, рассчитанное на одного, максимум двух человек. «Мы просто хотели попросить, чтобы будущие жильцы интерьера наполнили его своими любимыми вещами», — говорит дизайнер.
По теме: Надежда Комарова: Студия 42 кв. счетчики с винтажными деталями


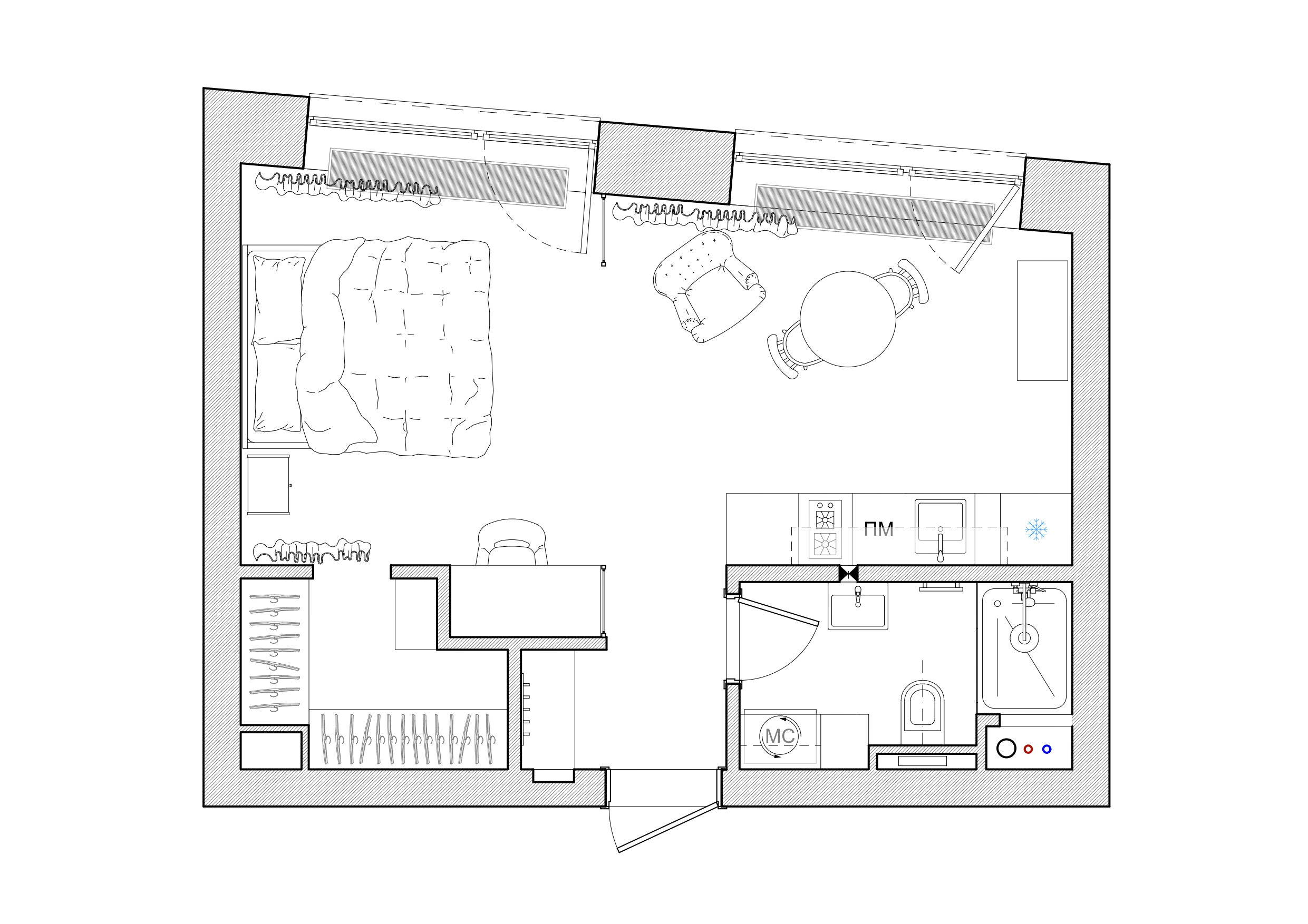
Планировка застройщика оказалась достаточно удобной: студия была разделена на две равные части, что определило расположение функциональных зон. Дизайнер лишь немного уменьшил гардеробную и перенес вход в спальню, чтобы освободить место в прихожей. Главное достоинство квартиры – большие окна, которые наполняют пространство светом и стирают грань между интерьером и окружающим пейзажем. Чтобы усилить этот эффект, стены покрасили в белый цвет. На пол в основной комнате положили техническую доску теплого оттенка, а в зале и санузле использовали небольшую плитку с шахматным рисунком.



Отправной точкой проекта стал подвесной светильник, украсивший обеденную зону. «Гладкое матовое стекло и тонкая кайма винного цвета вдохновили на создание легкого, яркого интерьера с мелкими контрастными деталями», — говорит Надежда. — Так появились цветовые акценты в монохромной гамме: синие чемоданы и керамический крючок в ванной, красные крючки в прихожей, яркие настольные лампы, подушки и моя любимая деталь здесь — полосатая подкладка штор, которая видна только при движении текстильного полотна. »


Большая часть мебели в квартире винтажная. Винтаж изначально был в референсах, что сразу подкупило надежду, ни один проект которой не обходился без старых вещиц. «Покупатели разделяют эту мою любовь и с удовольствием участвуют в процессе охоты на Авито. Предметы с историей придают интерьеру глубину и индивидуальность, что особенно ценно в минимализме».




Будьте вдохновлены Вконтакте С нами






.jpg)








