Дизайнер Ольга Тищенко реализовали необычный проект — создали пространство для молодой компании по принципу офисного дома с рабочими местами и квартирами для проживания командировочных. Компания занимается проектной деятельностью и техническим надзором за дорожными проектами в России.
Предмет: Ольга Тищенко: квартира 51 м² в комплексе Филиппа Старка
Руководство приобрело две квартиры в жилом комплексе HILL8 в Москве свободной планировки одинаковой площадью 73 м². метры. Панорамное остекление и высокие потолки создали возможность экспериментировать при оформлении различных офисных помещений.

Ольга ТищенкоДизайнер




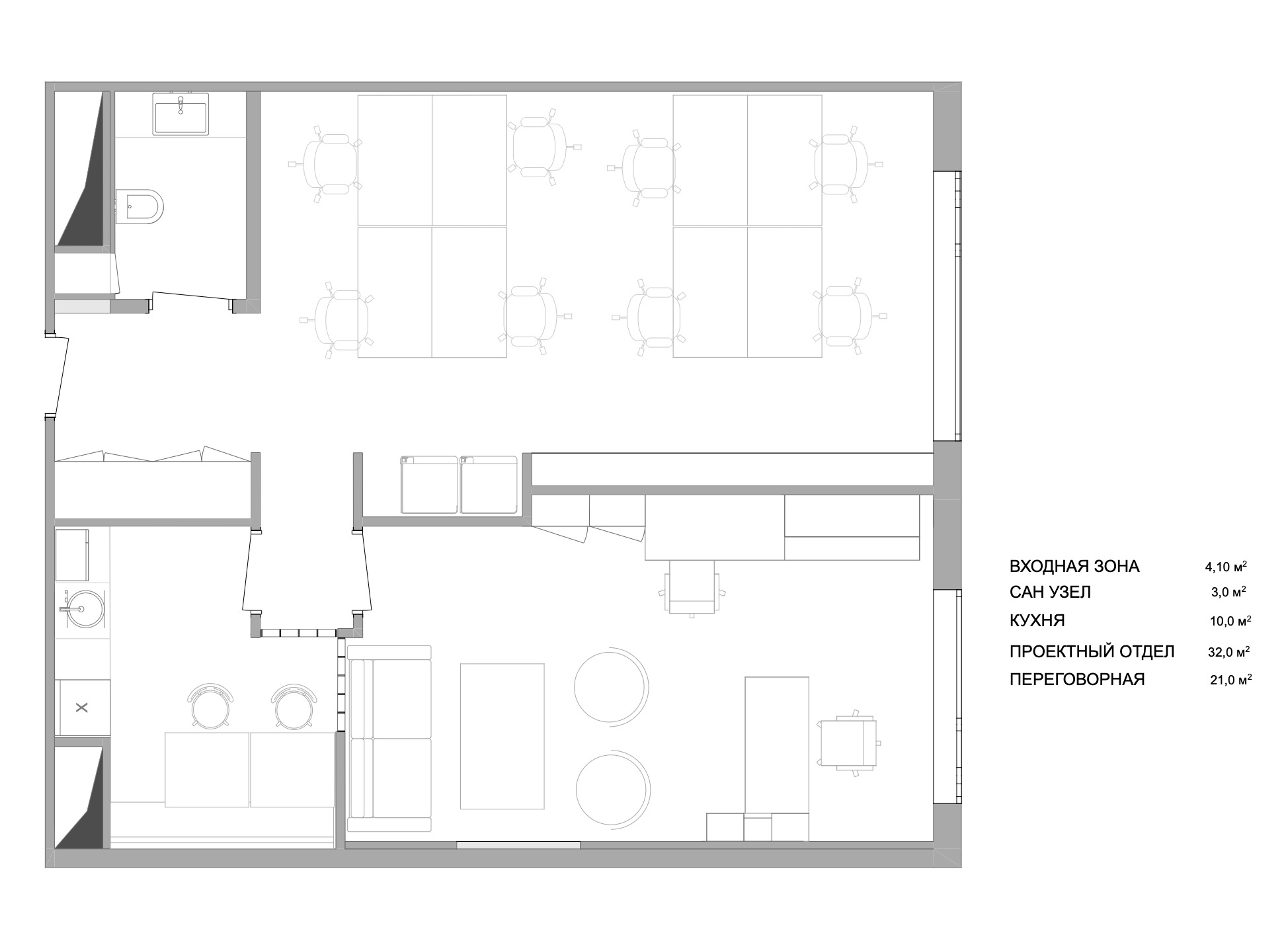
Офис
В рабочей квартире спроектированы: прихожая с гардеробом и санузлом, открытое пространство для работы инженеров и изыскателей, кабинет для совещаний и рабочие места для руководителей, зона отдыха с кухонным уголком и обеденными столами. Для отделки пола мы выбрали практичную кварцвиниловую плитку в тон бетону, зонирование выполнено с помощью стеклоблоков, а стены переговорной и входа покрашены вместе с дверями в один цвет, чтобы создать единое пространство.




Вся мебель для хранения изготавливается индивидуально из прочного ДСП для длительного и комфортного использования. В зоне отдыха сотрудников столы выполнены из натурального дерева и шпона, а стены для удобства использования облицованы крупноформатным керамогранитом под камень. Потолки было решено не зашивать и оставить визуально максимально высокими, обозначив рабочую зону только металлическими подвесными потолками. Короче говоря, сотрудники офиса должны были быть мужчинами, поэтому цветовая гамма была выполнена в приглушенных тонах. Плакаты на стенах дизайнерского отдела стали яркими, а яркий алый цвет появился в декоре кабинета/переговорной комнаты менеджера.







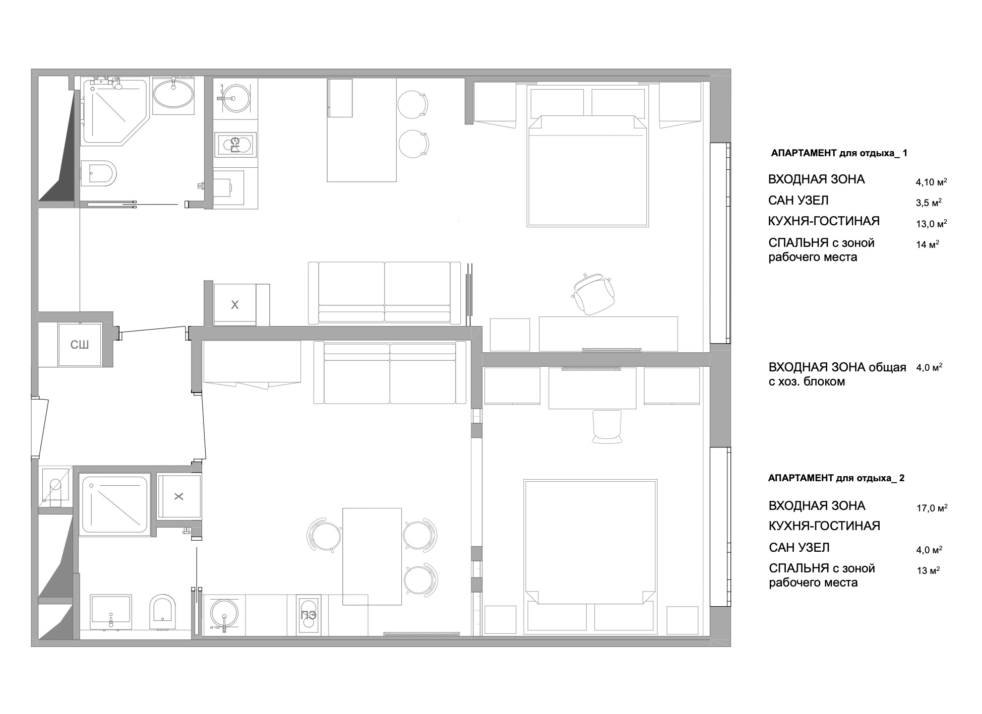
Дом
Квартиры предназначены для временного проживания сотрудников компаний и гостей, приезжающих в московский офис на стажировку или в командировку на несколько дней. Жилое пространство было разделено на две компактные квартиры с отдельной прачечной при входе, гардеробной, санузлом, кухней и обеденным столом, а также спальней с письменным столом.

Для пола использована композитная доска. В спальной зоне спроектированы шкафы 2 в 1: с одной стороны они предназначены для хранения одежды, а вторая функция – прикроватная тумбочка в виде ниши. Зонирование осуществляется двумя способами: с помощью мобильной перегородки и прозрачных стеклоблоков.






Одна комната оформлена в приглушенной контрастной черно-белой гамме, а другая – в более мягких серых тонах. Текстиль в зонах отдыха создает домашнюю атмосферу: изголовья, покрывала, пледы, подушки, шторы и ковры с крупными принтами. Декор на стенах подобран в виде больших постеров и произведений художников. За изголовьями использована декоративная облицовка бельгийской фабрики Arte; Особенность покрытий в том, что принты имитируют текстуру волокон ткани. Осветительные приборы преимущественно располагаются на стенах; они подчеркивают зоны отдыха.









Будьте вдохновлены ВКонтакте с нами













_resized.jpg)

