Свойства объекта
Год постройки
2010 год
Год реализации
2025 год
Высота потолка
2,6 метра
Бюджет
6 миллионов рублей
Фото
Елизавета Гуровская
Короткий
Дизайнер Екатерина Пашнина создала интерьер для молодой девушки, работающей удаленно. Она увлекается спортом, искусством и коллекционированием винтажной посуды. Интерьер выполнен в светлых базовых тонах, что позволяет легко интегрировать интересные вещи: винтаж, хрусталь, картины. Екатерина также предусмотрела рабочее пространство и полезные системы хранения, чтобы пространство было максимально функциональным и комфортным.
Дизайнер Екатерина Пашнина
Подробности
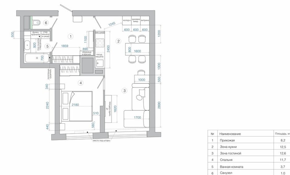
Перепланировку квартиры уже делал предыдущий владелец и стояла задача лишь оптимизировать расстановку мебели и функциональных помещений. Вход в основную часть квартиры осуществляется через кухню-гостиную, вытянутую комнату с кухней при входе и далее зону отдыха. Во второй комнате есть спальня. В квартире также есть прихожая и отдельная ванная комната.


Кухня разделена по функционалу и цвету на две зоны: зону приготовления пищи и зону хранения. Изготавливается по индивидуальному проекту. На кухне просторные ящики для посуды и крупной бытовой техники. Есть встроенная посудомоечная машина, духовка, микроволновая печь и холодильник, а также есть место для небольшого винного шкафа.


Стены покрашены французской краской, а ванные комнаты красивого терракотового цвета с плиткой небольшого формата, которую можно мыть. Пол покрыт кварцевым паркетом «елочка», который обеспечивает приятные тактильные ощущения и очень устойчив к воде. Благодаря этим свойствам его можно смело использовать во влажных помещениях, например на кухне и в коридоре.


У клиента изначально было две картины и именно они вдохновили меня на выбор цветовой палитры. Остальные картины также сохраняют контрастные цветовые акценты.

Любимые элементы – винтажные шкафы и светильники в гостиной и спальне. Хрустальные люстры собираются вручную вместе с заказчиком, каждый подвес тщательно подвешивается на каркас. И, конечно же, синяя кровать – мощный цветовой акцент в спальне.



В нише прихожей расположен большой шкаф, который предназначен для хранения одежды, обуви и спортивного инвентаря на весь сезон, в том числе и сноубордов. В спальне также есть гардероб, который хоть и небольшой, но обеспечивает максимум полезного места для хранения вещей. Кроме того, функцию хранения выполняют винтажные шкафы в прихожей и гостиной, где можно разместить книги, документы, косметику и другие мелкие предметы.


Санузлы в квартире раздельные. Ванная комната оборудована ванной и большим шкафом для стиральной машины и моющих средств, установлен шкаф с широкой столешницей. Чтобы визуально расширить пространство, были использованы зеркальные двери. В туалете тоже решили немного «сломать» стереотипы и установили зеркала, которые дают свет и делают помещение просторнее.



«Особенно ценно, что все больше людей стремятся окружить себя вещами с историей и смыслом», — резюмирует Екатерина. – Винтаж, коллекционный дизайн, искусство – все это становится частью их домашней и личной истории. Очень приятно работать с такими клиентами: умными, открытыми к диалогу, с настоящим вкусом к жизни. Вместе ищите картины и постеры на арт-ярмарках, обсуждайте их и подбирайте предметы для интерьера – это всегда вдохновляет и делает процесс создания проекта особенно живым.
Фото квартиры До
Бренды представленные в проекте
Напольное покрытие: кварцевый паркет.
Ванна: Бельбаньо
Текстиль и декор: Ткано
Просвещение: Денкирс; Евровет
Похожие записи:
- Как дизайнер превратил двухкомнатную квартиру в трехкомнатную 61 м² — INMYROOM
- Как дизайнер спроектировал для себя двухкомнатную квартиру 42 м² в хрущевке — INMYROOM
- До и после: как старую сталинскую двухкомнатную квартиру 64 м² превратили в уютную трёхкомнатную — INMYROOM
- До и после: как бюджетно обновили старую двухкомнатную квартиру площадью 53 м² — INMYROOM







_2.jpg)




_resized.jpg)

