Эта квартира в Москве в ЖК «Шереметьевский» от дизайнеровмедленное письмо Создан для себя. «Главной задачей было создать по-скандинавски уютный и в то же время по-японски элегантный интерьер, в котором приятно находиться и жить», — говорят авторы проекта. — На площади 70 кв. Мы постарались создать простое и уютное пространство, наполненное предметами российских и скандинавских брендов. »
По теме: Цветовой минимализм: квартира в Москве по проекту бюро «Слово»

Медленное письмо
Веб-сайт

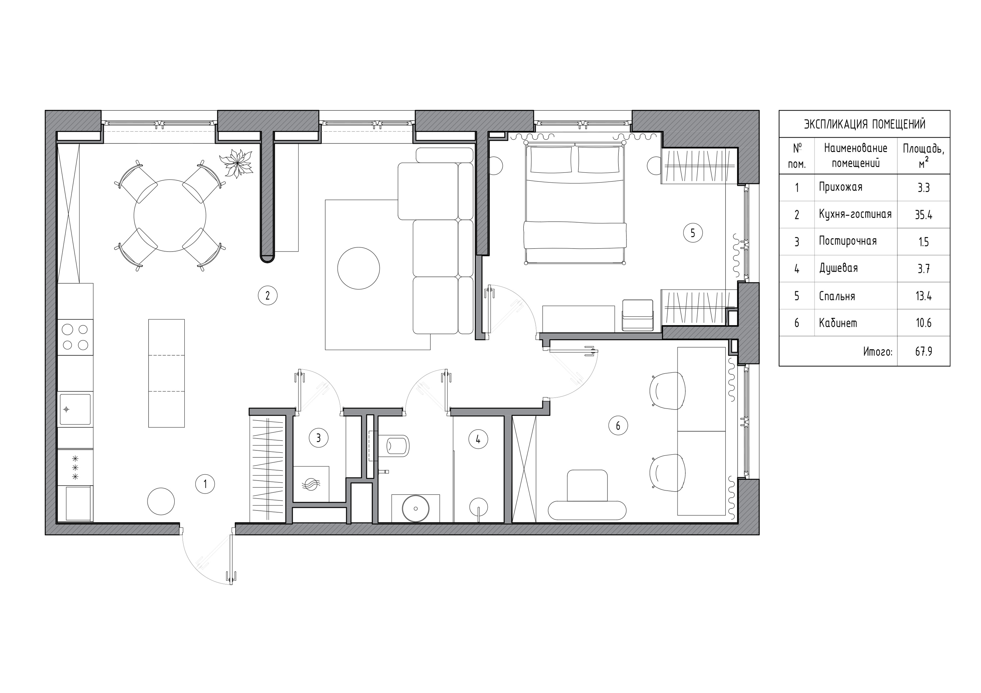
«Изначально у нас уже было представление о планировке, которую мы хотели видеть в квартире, поэтому задача была легко найти что-то подобное на рынке. К сожалению, квартира уже с отделкой, но комнат в ней было четыре. Также нас привлекло большое количество окон — пять штук, а также их прямоугольная форма, предложенная застройщиком. Работа с клиентами».

«Работая над планировкой, мы решили объединить одну из комнат с кухней и гостиной, чтобы создать единое большое пространство. Кроме того, мы оставили прихожую, обеспечив прямой доступ в квартиру и освободив дополнительное место для кухонного острова. Облицуйте ее плиткой и создайте главную фишку интерьера.


«Швы между плитками на пилоне мы сознательно оформляли с небольшой небрежностью, используя в качестве маяков рубленные профили для гипсокартона. На затирку швов потребовалось 140 кг затирочной смеси, которую мы добивались у строителей. Вспоминая студенческие годы, швы красили своими руками.

«Чтобы добиться чистоты линий, мы по всему периметру использовали прорезную кромку высотой 3 мм. Чтобы визуально расширить пространство и улучшить изоляцию, шпонированные двери в гостиной были дополнены стеклянными фрамугами, которые пропускали свет в санузел, а входная зона, пришедшая на смену абдонской, объединила соформатные Функциональные зоны единым визуальным кодом.

«Цветовая гамма построена на контрасте нейтрального фона и богатых акцентов. Пространство кухни-гостиной выполнено в белых тонах, которые выгодно подчеркивают мебель и архитектурные элементы. Для кабинета мы выбрали глубокий серо-зеленый оттенок Normandy Grey, который охватывает все поверхности, в том числе CEILD, который является атмосферой помещения. Повторяется в шкафах, на стенах, потолке и текстиле.

«Как и в большинстве наших проектов, мы решили использовать мебель российских и скандинавских брендов, а столярные изделия заказывали у проверенных подрядчиков. Некоторые предметы, такие как Кровать Yaratam из лимитированной серии или кресло Artu с выразительным силуэтом, мы заметили на выставках и в салонах».










Самое главное в нашем Телеграмма— Для тех, кто спешит



.jpg)











