Дизайнер Ксения Шемякова спроектировала светлую квартиру в панельном доме на Профсоюзной улице в Москве для активной молодой пары, которая на момент ремонта ждала ребенка. В основу проекта лег образ «горного воздуха» — именно так автору удалось заполнить пространство площадью 85 квадратных метров. метр с ощущением света и простора, но в то же время избегая стерильной белизны.
По теме: Квартира с винтажной мебелью для молодой пары: проект Юлии Даниловой-Нитусовой в Москва-Сити

Ксения ШемяковаДизайнер интерьера

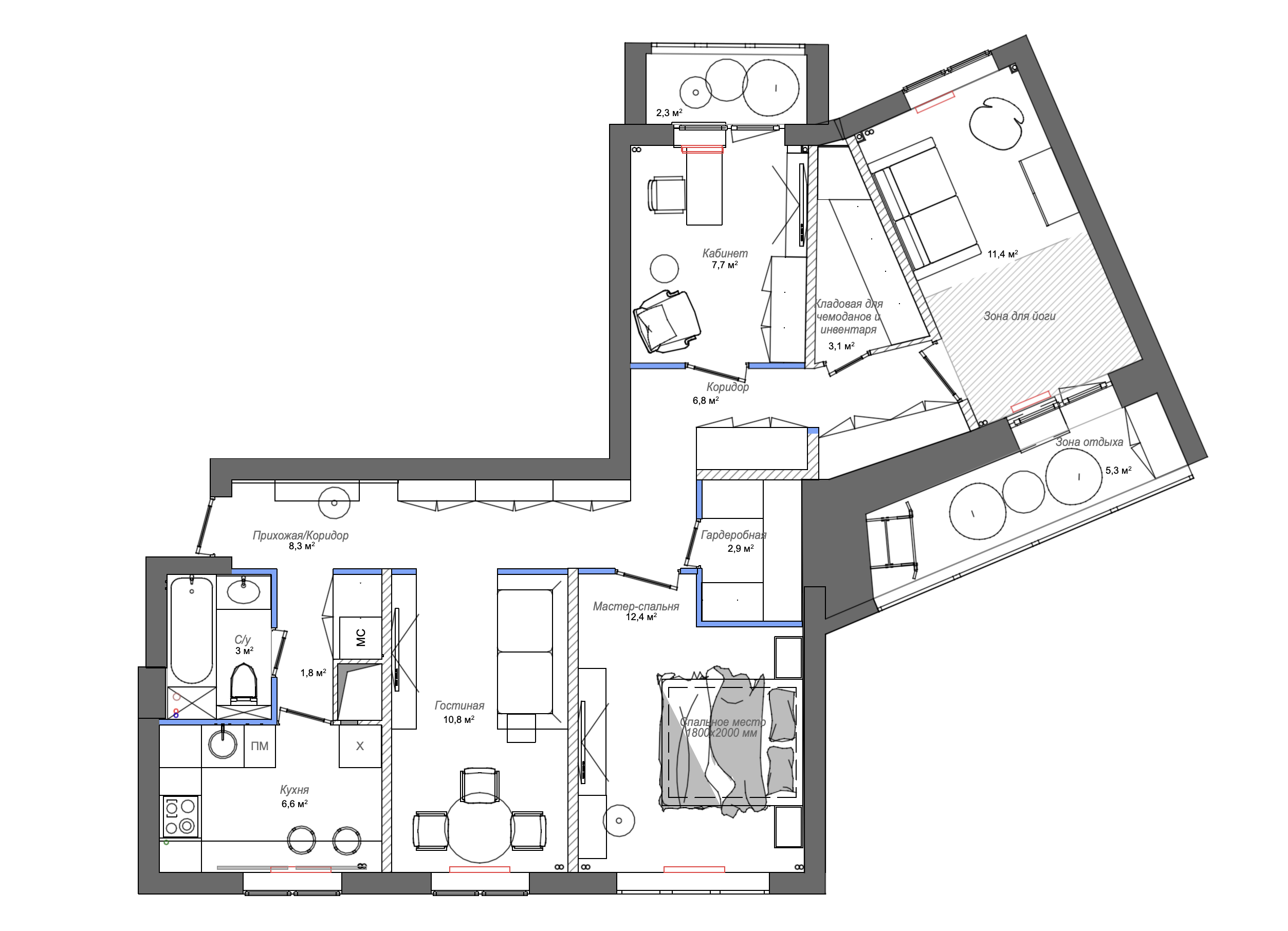
«Первое, о чем я подумал во время замеров, было: «Я хочу впустить сюда много света», — рассказывает автор проекта. — Зелень за окнами была настолько густой, что буквально поглощала свет. Сложность усугублялась планировкой: квартира угловая, расположена над аркой, кухня небольшая, типичная панельная, а стены, которые можно разобрать, всего две. При этом клиенты мечтали об открытом пространстве. Создать ощущение пространства в таких обстоятельствах было настоящей проблемой».

«Клиенты — очень гармоничные, открытые люди, буквально излучающие тепло и спокойствие. Клиентка преподает йогу, поэтому понадобилось оборудовать в квартире комнату для онлайн-тренировок. При этом пара любит экстремальную езду на спортивном мотоцикле, понадобилось отдельное помещение для хранения мотоэкипировки».


«Когда клиенты рассказали нам о своих пожеланиях, у меня сразу сложился образ их будущего дома: легкий, обволакивающий интерьер в южной атмосфере, но с тонко внесенным оттенком брутальности – чтобы он легко читался, но не утяжелял пространство. Важно было создать функциональную и гармоничную квартиру, где можно вместе завтракать, принимать гостей, работать и проводить онлайн-конференции, но при этом обойтись без глобальной перепланировки, требующей длительных одобрение.»

«Мы провели небольшой редизайн: убрали стену между прихожей и двумя комнатами. Одну из них переоборудовали в гостиную, а вторую — в кабинет со стеклянной перегородкой, которая добавила света в самую темную комнату квартиры. Мы сделали прихожую многофункциональной, разместив там большой шкаф и подсобное помещение, спрятанное за шторой. Отдельное помещение для хранения отведено для чемоданов и мототехники».

«Поскольку дом был построен в советское время, мне хотелось сохранить внутри дух того времени, поэтому я использовал стеклоблоки, которые лаконично вписываются в эстетику мягкого минимализма. Удачным решением стало сочетание грубых фактур с мягкими тканями, панелями из шпона и теплыми тонами. Например, декоративный «камень» в спальне не кажется холодным за счет окружающих теплых материалов. В гостиной и кухне светлая незавершенная штукатурка – это светлая незавершенная штукатурка. использован. сбалансирован деревом и текстилем, а густая зелень за окном дополняет эту природную палитру».

«Цветовая палитра была основана на натуральных оттенках. На заключительном этапе реализации клиент неожиданно сказал: «Я консультировался со специалистом по Васту — нужно делать гармонизацию». Поскольку мы изначально не собирались ориентироваться на эти принципы, некоторые наши решения противоречили этим принципам. Например, спальня располагалась не в той части квартиры и использовать красные оттенки для использования на кухне оказалось недопустимо — нам срочно пришлось на замену бордовых барных стульев. Узнала интересную деталь: если из-за планировки что-то не получается расположить правильно, пространство гармонизируют, размещая в определенных местах камни – коралловые, медные или серебряные. Так что теперь между паркетом и стеной местами «живой» коралл, а где-то серебро».










Самое главное в нашем Телеграмма— для тех, кто спешит




.jpg)










