Трешка 99 м² с элементами сдержанной классики в исторической части Петербурга — INMYROOM

Лента новостей

Характеристики объекта

Место

Санкт-Петербург

Год постройки

1900 г.

Год реализации

2025 год

Стилист

Наталья Стрижакова

Фото

Иван Сорокин

Кратко

Эту трехрублевую квартиру дизайнер Наталья Шмидт обустроила для молодой семьи, всю жизнь прожившей в Петербурге. Квартира должна была стать их главным домом в городе. При выборе рассматривали только варианты в исторической части Петербурга. Поэтому заказчикам было важно, чтобы квартира выглядела по-петербургски, с элементами сдержанной классики, а цветовая гамма перекликалась с традиционными петербургскими оттенками – сложными синими, бежевыми и серо-зелеными тонами.

Дизайнер Наталья Шмидт

Подробности

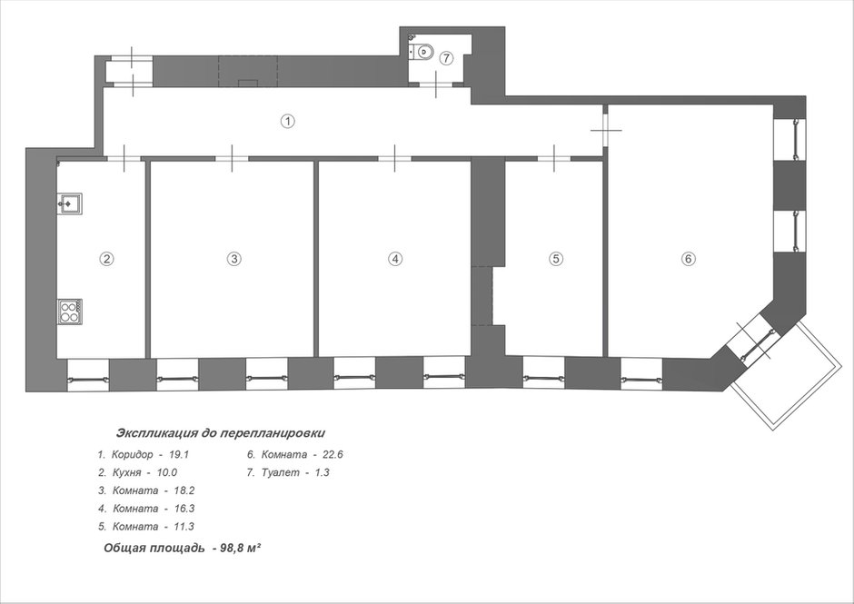
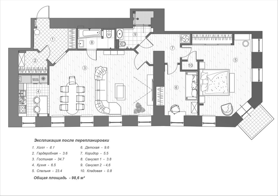
К недостаткам оригинальной планировки можно отнести очень маленькую ванную комнату, вмещавшую лишь унитаз и небольшую раковину, а также отсутствие санузла – у предыдущих жильцов он незаконно занимал часть кухни. В связи с этим была проведена перепланировка. В квартире оборудована просторная кухня-гостиная, родительская спальня, детская комната, холл, гардеробная и два санузла.

Фото: Планировки в стиле, Квартира, Проект дня, Санкт-Петербург, Кирпичный дом, Более 90 метров, модерн с элементами классики и роскоши, Наталья Шмидт – фото на INMYROOM
Фото: Планировки в стиле, Квартира, Проект дня, Санкт-Петербург, Кирпичный дом, Более 90 метров, модерн с элементами классики и роскоши, Наталья Шмидт – фото на INMYROOM

Для меня, как автора, этот проект — признание в любви моему родному городу. Стиль квартиры я бы определил как эклектику, сочетающую классические приемы в оформлении стен, потолков и современность в подборе мебели, предметов искусства и декора, что гармонично сочетается с настроением Петербурга.

Фото: Кухня и столовая в стиле Классика, Модерн, Квартира, Проект дня, Санкт-Петербург, Кирпичный дом, Более 90 метров, модерн с элементами классики и роскоши, Наталья Шмидт – фото на INMYROOM
Фото: Кухня и столовая в стиле Классика, Модерн, Квартира, Проект дня, Санкт-Петербург, Кирпичный дом, Более 90 метров, модерн с элементами классики и роскоши, Наталья Шмидт – фото на INMYROOM

Одной из главных задач было организовать просторную гостевую зону с большим обеденным столом и удобным диваном, чтобы в ней легко могла разместиться шумная компания друзей. Эта зона отделена от прихожей широким диагональным проемом, как бы приглашая вас в основной зал. Вход в приватную часть квартиры организован прямо из гостиной по принципу анфилады.

Фото: Кухня и столовая в стиле Классика, Модерн, Квартира, Проект дня, Санкт-Петербург, Кирпичный дом, Более 90 метров, модерн с элементами классики и роскоши, Наталья Шмидт – фото на INMYROOM
Фото: Кухня и столовая в стиле Классика, Модерн, Квартира, Проект дня, Санкт-Петербург, Кирпичный дом, Более 90 метров, модерн с элементами классики и роскоши, Наталья Шмидт – фото на INMYROOM

Мне посчастливилось работать с талантливым художником по текстилю Ларисой Шамшудиновой, которая справляется с любой задачей. Ее опыт подтверждается тем, как она вручную подшила все шторы в гостевой зоне, гарантируя безупречное качество и внимание к деталям.

Фото: Гостиная в стиле Классика, Модерн, Квартира, Проект дня, Санкт-Петербург, Кирпичный дом, Более 90 метров, модерн с элементами классики и роскоши, Наталья Шмидт – фото на INMYROOM
Большую часть мебели разработал мастер Гаэтан Рукье, владелец Французской мастерской.

Большую часть мебели разработал мастер Гаэтан Рукье, владелец Французской мастерской.

ЧИТАТЬ  Colboc Sachet Architects: отель и галерея в бывших бункерах

Хозяин квартиры приветствует современное искусство, а классический дизайн стен прекрасно сочетается с камерной скульптурой Федора Крушельницкого и мозаичными работами Татьяны Дубовской. Уникальные керамические изделия являются яркими акцентами и отражают цветовую палитру помещения.

Фото: Гостиная в стиле Классика, Модерн, Квартира, Проект дня, Санкт-Петербург, Кирпичный дом, Более 90 метров, модерн с элементами классики и роскоши, Наталья Шмидт – фото на INMYROOM

Особое внимание было уделено цветовому решению и сочетанию разных фактур. Каждый номер оформлен в нескольких оттенках одного цвета с добавлением контрастных акцентов. Основным цветом, объединяющим пространство, стал сине-серый. Холодные серо-изумрудные тона в гостевой зоне переходят в уютные сиренево-пудровые тона спальни и теплые солнечно-песочные оттенки в детской.

Фото: Спальня в стиле Классика, Модерн, Квартира, Проект дня, Санкт-Петербург, Кирпичный дом, Более 90 метров, модерн с элементами классики и роскоши, Наталья Шмидт – фото на INMYROOM
Фото: Спальня в стиле Классика, Модерн, Квартира, Проект дня, Санкт-Петербург, Кирпичный дом, Более 90 метров, модерн с элементами классики и роскоши, Наталья Шмидт – фото на INMYROOM
Фото: Спальня в стиле Классика, Модерн, Квартира, Проект дня, Санкт-Петербург, Кирпичный дом, Более 90 метров, модерн с элементами классики и роскоши, Наталья Шмидт – фото на INMYROOM
Фото: Спальня в стиле Классика, Модерн, Квартира, Проект дня, Санкт-Петербург, Кирпичный дом, Более 90 метров, модерн с элементами классики и роскоши, Наталья Шмидт – фото на INMYROOM

В квартире много мест для хранения вещей – просторные гардеробные и встроенные шкафы. Даже в небольшой детской комнате нашли место для вместительного гардероба, расположенного в несущей стене, там, где раньше был широкий дверной проем.

Фото: Детская комната в стиле Модерн, Квартира, Проект дня, Санкт-Петербург, Кирпичный дом, Более 90 метров, модерн с элементами классики и роскоши, Наталья Шмидт – фото на INMYROOM
Фото: Детская комната в стиле Классика, Модерн, Квартира, Проект дня, Санкт-Петербург, Кирпичный дом, Более 90 метров, модерн с элементами классики и роскоши, Наталья Шмидт – фото на INMYROOM

Хозяйка квартиры отметила: «Каждый раз, когда я прихожу домой, я очаровываюсь заново. Наталья создала не просто интерьер, а атмосферу, в которой мне было очень приятно находиться. Все продумано — от функциональной планировки до настроения, создаваемого цветами и светом. Это пространство на 100% принадлежит мне, и я благодарен за каждый совет и каждое принятое решение».

Фото: Прихожая в стиле Классика, Модерн, Квартира, Проект дня, Санкт-Петербург, Кирпичный дом, Более 90 метров, модерн с элементами классики и роскоши, Наталья Шмидт – фото на INMYROOM
Фото: Прихожая в стиле Классика, Модерн, Квартира, Проект дня, Санкт-Петербург, Кирпичный дом, Более 90 метров, модерн с элементами классики и роскоши, Наталья Шмидт – фото на INMYROOM

Заказчикам было важно иметь два полноценных санузла. В одной из них, для жены, была ванна, а в другой – просторная душевая. Со временем ванные комнаты даже получили свои названия: «Женская» — изысканная с элементами классического стиля, и «Мужская» — более минималистичная и брутальная.

Фото: Ванная в стиле Модерн, Квартира, Проект дня, Санкт-Петербург, Кирпичный дом, Более 90 метров, модерн с элементами классики и роскоши, Наталья Шмидт – фото на INMYROOM
Фото: Ванная в стиле Модерн, Квартира, Проект дня, Санкт-Петербург, Кирпичный дом, Более 90 метров, модерн с элементами классики и роскоши, Наталья Шмидт – фото на INMYROOM
Фото: Ванная в стиле Модерн, Квартира, Проект дня, Санкт-Петербург, Кирпичный дом, Более 90 метров, модерн с элементами классики и роскоши, Наталья Шмидт – фото на INMYROOM
Фото: Ванная в стиле Модерн, Квартира, Проект дня, Санкт-Петербург, Кирпичный дом, Более 90 метров, модерн с элементами классики и роскоши, Наталья Шмидт – фото на INMYROOM

Бренды представленные в проекте

Напольное покрытие: керамогранит Equipe, La Fabbrica Ava.
Сантехника: туалеты, до полудня; Джейкоб Делафон
Освещение: Майтони; Арте Лампа
Хотите, чтобы ваш проект был опубликован на INMYROOM? Фотографии интерьера присылайте на почту wow@inmyroom.ru.
Оцените статью
( Пока оценок нет )
Строительство. Ремонт. Садоводство