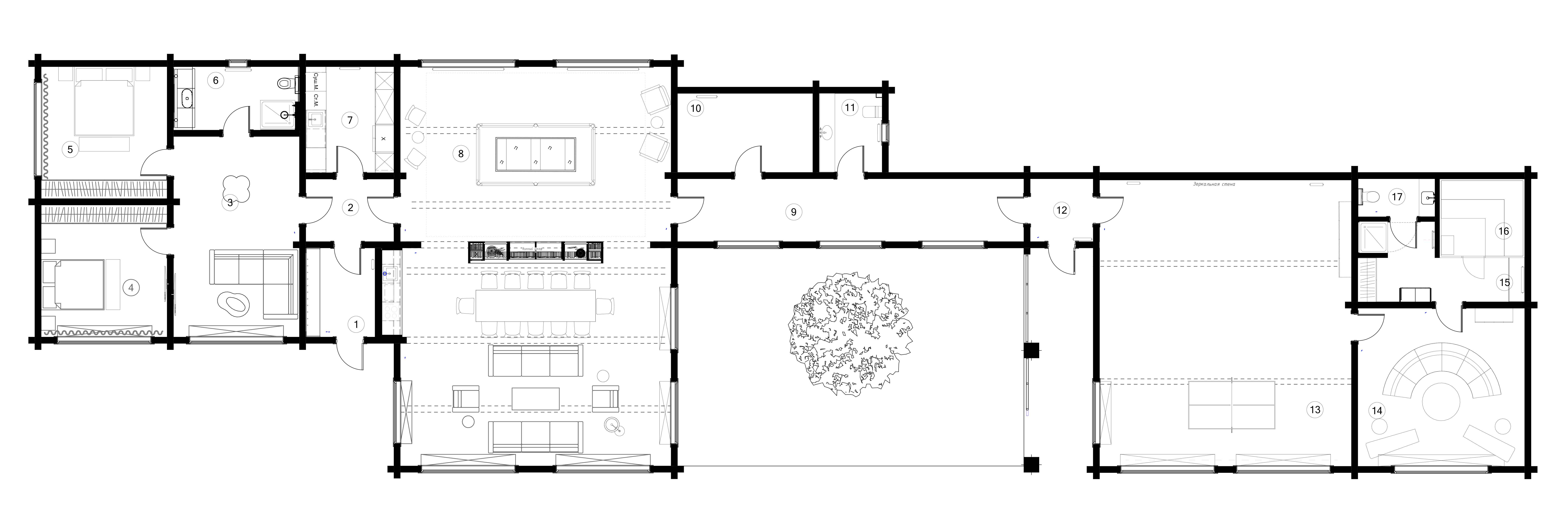
Клиенты обратились к дизайнеру ОКСАНА КОРОТКИНА С просьбой обновить интерьер дома на шоссе Rublevo-Convenskoye, который был построен двадцать лет назад. Они должны были действовать быстро: молодая семья ожидала своего второго ребенка. При покупке выбор упал на эту собственность, не в последнюю очередь из -за успешной планировки, просторных комнат, где гостиная покрывает 100 м² только. Счетчики, потолочные высоты и окна с видом на лес.
Для каждой темы: Оксана Коткина и Владимир Данилин: две квартира на юго -западе Москвы

Oksana Korotkinaoksana Korotkina Studio
Веб -сайт


«Самым важным желанием клиентов было принести новую жизнь в дом, принимая во внимание их интересы — они любят искусство, собирая винтаж и керамику», — говорит Оксана. «Мы создали интерьер, в котором объекты сборки и новые предметы могут быть гармоничными бок о бок, и коллекция может быть постоянно дополнена; в доме достаточно мест, чтобы показать их. Моя задача состояла в том, чтобы обработать начальные данные как можно более тщательно, и с помощью минимальных вмешательств новый образ для дома был использован для формирования».


Дом имеет два этажа, а общая поверхность составляет приблизительно 320 м². метр. Что касается макета, обновление только повлияло на кухню — поверхность ее была немного больше. Выход в гараж и еловое пространство с бассейном было сделано как можно более ненавязчивым, делая его в том же цвете, что и стены. Благодаря открытому отверстию между кухней и столовой, на первом этаже всегда достаточно света. «Мы также визуально увеличили высоту дверей, добавив декоративное зеркало сверху. Например, высота увеличилась с 2,2 метра до 2,6 метра», — говорит дизайнер.


Второй этаж включал в себя личные пространства: большая спальня и детская. Все стены окрашены в краску Shwerwin-Williams, создавая красивые цветовые вариации при изменении освещения. Травертин использовался для покрытия отверстий в гостиной и портале нового камина (старый был полностью демонтирован), а на кухне использовался редкий тип сиренного мрамора. «Экстерьер и интерьер всегда остаются связанными, и этот фактор был учитываться при разработке цветовой палитра. Мы использовали сложные оттенки коричневого, шоколада, омбер и изумрудно -зеленого», — добавляет дизайнер. — И основание — светлые цвета, чтобы подчеркнуть коллекцию искусств. Клиенты много путешествуют, добавляют предметы со всего мира в свою коллекцию и всегда любят возвращаться домой. ”





«Одна из лучших находок — винтажные кресла от камина. Они были спроектированы Пьером Полин в 1970 -х годах. И, конечно, кресло Кассина в телевизионной комнате. Элегантные лампы Венини в коридоре и главной спальне и редкий старинный потолочный ламп, разработанные французским мастером Жан -Новерди, сделали это завершено».




Самая важная вещь в нашем Телеграмма— Для тех, кто спешит




.jpg)










